LUXURIOUS PROJECT IN KAGITHANE/ ISTANBUL
Starts From
$680,000
Download Pdf
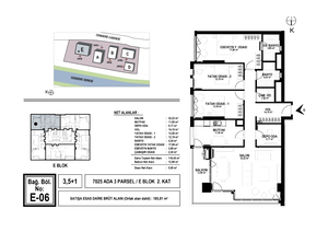
Lot No
:
en9034
Area (m2)
:
116
Land Area (m2)
:
27000
Number of Rooms
:
1
Bedrooms
:
3
Bathrooms
:
2
Balconies
:
1
Floor
:
2
Property Features;
Balcony
Balcony
Parking
Parking
Swimming Pool
Swimming Pool
Elevator
Elevator
How Can We Help You?
Turqua Invest:
Hello, you can contact us via
Whatsapp.
18:09
Start the Conversation